<center id="mocom"></center>
  • <xmp id="mocom"><center id="mocom"></center>
    <dd id="mocom"><center id="mocom"></center></dd>
  • <xmp id="mocom">
  • <xmp id="mocom">
    <dd id="mocom"><dd id="mocom"></dd></dd>
  • <center id="mocom"><center id="mocom"></center></center>
  • <rt id="mocom"></rt>
    熱線電話13916299677
    圖文傳真021-66773338
    電子郵箱sale@cnspump.com

    產品簡介


    QJ型井用潛水電泵是電機與水泵直聯一體潛入水中工作的提水機具,它適用于從深井提取地下水、也可用于河流、水庫、水渠等提水工程:主要用于農田灌溉及高原山區的人畜用水,亦可供城市、工廠、鐵路、礦山、工地供排水使用。

    產品優勢


    1. 電機、水泵一體,潛入水中運行,安全可靠。
    2. 對井管、揚水管無特殊要求(即:鋼管井、灰管井、土井等均可使用;在壓力許可下、鋼管、膠管、塑料管等均可作揚水管使用)。
    3. 安裝、使用、維護方便簡單,占地面積小、不需建造泵房。
    4. 結構簡單、節省原材料。 潛水電泵使用的條件是否合適,管理得當與使用壽命有直接的關系。

    選型范圍


    QJ型井用潛水電泵(深井泵)

    性能參數本數據僅供參考,請以實際訂貨為準!


    QJ型井用潛水電泵(深井泵)

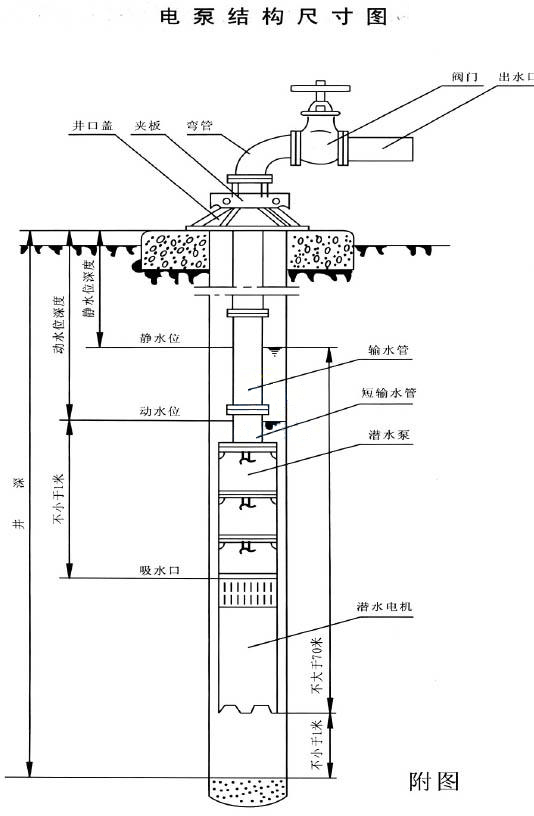
    結構圖紙


    QJ型井用潛水電泵(深井泵) 結構說明 1.QJ型潛水電泵機組由:水泵、潛水電機(包括電纜)、輸水管和控制開關四大部分組成。潛水泵為單吸多級立式離心泵:潛水電機為密閉充水濕式、立式三相鼠籠異歩電動機,電機與水泵通過爪式或中.鍵筒式聯軸器直接;配備有不同規格的三芯電纜:起動設備為不同容量等級的空氣開關和自耦減壓起動器、輸水管為不同直徑的鋼管制成,采用法蘭聯接,高揚程電泵釆用閘閥控制。 2.潛水泵每級導流殼中裝有一個橡膠軸承;葉輪用錐形套固定在泵軸上:導流殼采用嫘紋或螺栓聯成一體。 3.高揚程潛水泵上部裝有止回閥,避免停機水錘造成機組破壞。 4.潛水電機軸上部裝有迷宮式防砂器和兩個反向裝配的骨架油封,防止流砂進入電機。 5.潛水電機采用水潤滑軸承,下部裝有橡膠調壓膜、調壓彈簧,組成調壓室,調節由于溫度引起的壓力變化;電機繞組采用聚乙烯絕緣,尼龍護套耐水電磁線,電纜聯接方式按QJ型電纜接頭工藝, 把接頭絕緣脫去刮凈漆層,分別接好,焊接牢固,用生橡膠繞-層。再用防水粘膠帶纏2~3層,外面包上2?3層防水膠布或用水膠粘結包一層橡膠帶(自行車里胎〉以防滲水。 6.電機密閉,采用精密止口螺牷,電纜出口加膠塾進行密封。 7.電機上端有一個注水孔,有一個放氣孔,卜部打個放水孔。 8.電機下部裝有上卜—止推軸承,止推軸承上有溝槽用干冷卻,和它對磨的是不銹鋼推力盤,承愛水泵的上廠軸向力。

    上一產品:
    下一產品:
    性爱交叉点