產品簡介
中成泵業自動攪勻污水泵、JYWQ型自動攪勻排污泵品牌廠家為您提供自動攪勻污水泵、JYWQ型自動攪勻排污泵型號,選型,視頻等技術服務:021-66519999。
自動攪勻污水泵在排送固體顆粒和長纖維垃圾以及減少污水坑內沉積等方面,具有獨特功能。
JYWQ型自動攪勻排污泵水力性能優質成熟。
中成泵業自動攪勻污水泵全部采用計算機設計和優化處理,公司擁有雄厚的技術力量、豐富的生產經驗和完善的檢測手段,從而保證產品質量的穩定可靠。
型號意義
產品優勢
- 利用泵自身出水壓力,攪勻污水池內沉淀污泥,真正達到徹底排出污水池沉淀物的目的。
- 大流道抗堵塞水力部件設計,大大提高污物通過能力,能有效通過泵口徑的5倍纖維物質和直徑為泵口徑約50%的固體顆粒。
- 設計合理,配套電機合理,效率高,節能效果顯著。
- 機械密封采用雙道串聯密封,材質為硬質耐腐碳化鎢,耐用,耐磨,可使泵安全連續運行8000小時以上。
- JYWQ型自動攪勻排污泵結構緊湊,體積小、移動方便,安裝簡便,無需建泵房,潛入水中即可工作,減少工程造價。
- 油室內設有油水探頭,對泵實施絕對保護。
- 可配備全自動安全保護控制柜,對泵的漏水、漏電、過載及超溫等進行絕對保護,提高產品的安全可靠性。
- 浮球開關可根據所需的水位變化,自動控制泵的停啟,無需專人看管。
- 電機可采用水套式外循環冷卻系統,保證電泵在無水(干式)狀態下安全運行。
- 雙導軌自動耦合安裝系統,給泵的安裝、維修帶來極大的方便,人可不必為此進入污水坑。
- 安裝方式有固定式自動耦合安裝和移動式自由安裝二種,可滿足不同的使用場合。
選型范圍
自動攪勻污水泵適用于化工、石油、制藥、采礦、造紙、電廠及城市污水處理、市政工程、公共設施排污等輸送帶顆粒、沉淀物的污水污物。
| 型號 |
排出 口徑 (mm) |
額定 流量 (m3/h) |
額定 揚程 (mm) |
攪拌 直徑 (mm) |
轉速(r/min) |
效率(%) |
自動耦合器 |
| JYWQ50-12-15-1200-1.5 |
50 |
12 |
15 |
1200 |
2900 |
48 |
CAK-50 |
| JYWQ50-20-7-1200-1.1 |
50 |
20 |
7 |
1200 |
2900 |
62 |
CAK-50 |
| JYWQ50-10-10-1200-1.1 |
50 |
10 |
10 |
1200 |
2900 |
56 |
CAK-50 |
| JYWQ50-15-15-1200-2.2 |
50 |
15 |
15 |
1200 |
2900 |
51 |
CAK-50 |
| JYWQ50-25-10-1200-2.2 |
50 |
25 |
10 |
1200 |
2900 |
65 |
CAK-50 |
| JYWQ50-15-20-1200-2.2 |
50 |
15 |
20 |
1200 |
2900 |
56 |
CAK-50 |
| JYWQ50-20-15-1200-2.2 |
50 |
20 |
15 |
1200 |
2900 |
56 |
CAK-50 |
| JYWQ50-42-9-1200-3 |
50 |
42 |
9 |
1200 |
2900 |
56 |
CAK-50 |
| JYWQ50-17-25-1200-3 |
50 |
17 |
25 |
1200 |
2900 |
56 |
CAK-50 |
| JYWQ50-25-22-1200-4 |
50 |
25 |
22 |
1200 |
2900 |
62 |
CAK-50 |
| JYWQ50-40-15-1400-4 |
50 |
40 |
15 |
1400 |
2900 |
70 |
CAK-50 |
| JYWQ50-25-32-1600-5.5 |
50 |
25 |
32 |
1600 |
2900 |
52 |
CAK-50 |
| JYWQ50-40-30-1600-7.5 |
50 |
40 |
30 |
1600 |
2900 |
68 |
CAK-50 |
| JYWQ65-25-15-1400-3 |
65 |
25 |
150 |
1400 |
2900 |
65 |
CAK-65 |
| JYWQ65-37-13-1400-3 |
65 |
37 |
13 |
1400 |
2900 |
62 |
CAK-65 |
| JYWQ65-25-28-1400-4 |
65 |
25 |
28 |
1400 |
2900 |
60 |
CAK-65 |
| JYWQ80-40-7-1600-2.2 |
80 |
40 |
7 |
1600 |
2900 |
54 |
CAK-80 |
| JYWQ80-29-8-1600-2.2 |
80 |
29 |
8 |
1600 |
2900 |
54 |
CAK-80 |
| JYWQ80-43-13-1600-4 |
80 |
43 |
13 |
1600 |
2900 |
63 |
CAK-80 |
| JYWQ80-50-10-1600-3 |
80 |
50 |
10 |
1600 |
1450 |
76 |
CAK-80 |
| JYWQ80-40-15-1600-4 |
80 |
40 |
15 |
1600 |
2900 |
70 |
CAK-80 |
| JYWQ80-60-13-1600-4 |
80 |
60 |
13 |
1600 |
2900 |
70 |
CAK-80 |
| JYWQ80-35-25-1600-5.5 |
80 |
35 |
25 |
1600 |
2900 |
64 |
CAK-80 |
| JYWQ80-50-25-1600-7.5 |
80 |
50 |
25 |
1600 |
2900 |
70 |
CAK-80 |
| JYWQ80-50-30-1600-7.5 |
80 |
50 |
30 |
1600 |
2900 |
70 |
CAK-80 |
| JYWQ100-80-9-2000-4 |
100 |
80 |
9 |
2000 |
1450 |
62 |
CAK-100 |
| JYWQ100-110-10-2000-5.5 |
100 |
110 |
10 |
2000 |
1450 |
71 |
CAK-100 |
| JYWQ100-70-15-2000-5.5 |
100 |
70 |
15 |
2000 |
1450 |
71 |
CAK-100 |
| JYWQ100-100-15-2000-7.5 |
100 |
100 |
15 |
2000 |
1450 |
73 |
CAK-100 |
| JYWQ100-80-20-2000-7.5 |
100 |
70 |
20 |
2000 |
2900 |
71 |
CAK-100 |
| JYWQ100-50-35-2000-11 |
100 |
100 |
35 |
2000 |
2900 |
68 |
CAK-100 |
| JYWQ100-70-22-2000-7.5 |
100 |
80 |
22 |
2000 |
2900 |
70 |
CAK-100 |
| JYWQ100-100-22-2000-15 |
100 |
150 |
22 |
2000 |
1450 |
61 |
CAK-100 |
| JYWQ100-80-30-2000-15 |
100 |
210 |
30 |
2000 |
1450 |
67 |
CAK-100 |
| JYWQ150-150-10-2000-7.5 |
150 |
250 |
10 |
2000 |
1450 |
75 |
CAK-150 |
| JYWQ150-210-7-2500-7.5 |
150 |
150 |
7 |
2500 |
1450 |
78 |
CAK-150 |
| JYWQ150-250-6-2500-7.5 |
150 |
200 |
6 |
2500 |
1450 |
79 |
CAK-150 |
| JYWQ150-150-15-2500-11 |
150 |
65 |
15 |
2500 |
1450 |
79 |
CAK-150 |
| JYWQ150-200-10-2500-15 |
150 |
180 |
10 |
2500 |
1450 |
73 |
CAK-150 |
| JYWQ150-65-40-3200-18.5 |
150 |
150 |
40 |
3200 |
1450 |
58 |
CAK-150 |
| JYWQ150-180-22-2600-18.5 |
150 |
110 |
22 |
2600 |
1450 |
75 |
CAK-150 |
| JYWQ150-150-26-2600-18.5 |
150 |
300 |
26 |
2600 |
1450 |
72 |
CAK-150 |
| JYWQ150-110-30-2600-18.5 |
150 |
130 |
30 |
2600 |
1450 |
72 |
CAK-150 |
| JYWQ150-300-15-2600-22 |
150 |
100 |
15 |
2600 |
1450 |
76 |
CAK-150 |
| JYWQ150-130-30-2600-22 |
150 |
300 |
30 |
2600 |
1450 |
70 |
CAK-150 |
| JYWQ150-100-40-3000-30 |
150 |
250 |
40 |
3000 |
1450 |
64 |
CAK-150 |
| JYWQ200-300-7-3000-11 |
200 |
300 |
7 |
3000 |
1450 |
75 |
CAK-200 |
| JYWQ200-250-11-3000-15 |
200 |
250 |
11 |
3000 |
1450 |
72 |
CAK-200 |
| JYWQ200-300-10-3000-15 |
200 |
300 |
10 |
3000 |
1450 |
75 |
CAK-200 |
| JYWQ200-250-15-3000-18.5 |
200 |
250 |
15 |
3000 |
1450 |
72 |
CAK-200 |
| JYWQ200-400-10-3000-22 |
200 |
400 |
10 |
3000 |
1450 |
75 |
CAK-200 |
| JYWQ200-200-20-3000-22 |
200 |
200 |
20 |
3000 |
1450 |
73 |
CAK-200 |
| JYWQ200-250-22-3000-30 |
200 |
250 |
22 |
3000 |
1450 |
73 |
CAK-200 |
| JYWQ250-600-7-3000-22 |
250 |
600 |
7 |
3000 |
1450 |
78 |
CAK-250 |
| JYWQ250-600-9-3000-30 |
250 |
600 |
9 |
3000 |
1450 |
78 |
CAK-250 |
結構圖紙
- 自動攪勻污水泵采用獨特的雙流道無堵塞葉輪結構,提高污水污物的過流能力和排污能力。
- 自動攪拌裝置,產生極強的攪拌力,將池內的沉淀物攪拌成懸浮物后吸入葉輪排出,達到清淤的作用。
- 隔板將底座一分為二,攪拌與進水互不影響。
- 機械密封為雙端面機械密封,長期處于油室中,保證水泵安全可靠地運行。
- 副葉輪結構的流體動力密封,既有輔助密封作用,從而保護機械密封,又平衡軸向力, 延長軸承的使用壽命。
- JYWQ型自動攪勻排污泵接線腔內設有漏水檢測探頭,出現漏水時,探頭發出信號,控制系統對泵實施保護。本公司可配全自動安全保護控制柜。
- 電機定子采用B級和F級絕緣,內設熱保護器,當電機過載發熱,保護器及時作出動作, 對泵和電機實施絕對的保護。
- 油室內裝有油水探頭,當機械密封損壞后,水進入油室,探頭發出信號,由控制系統對水泵實施保護。

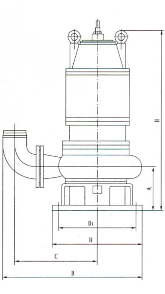
安裝尺寸本數據僅供參考,請以實際訂貨為準!
 |
| 序號 |
型 號 |
A |
B |
C |
D1 |
D |
H |
| 1 |
50-12-15-1200-1.5 |
135 |
400 |
245 |
225 |
255 |
670 |
| 2 |
50-20-7-1200-1.1 |
132 |
343 |
225 |
150 |
180 |
610 |
| 3 |
50-10-10-1200-1.1 |
132 |
343 |
225 |
150 |
180 |
610 |
| 4 |
50-15-15-1200-2.2 |
135 |
400 |
245 |
225 |
255 |
670 |
| 5 |
50-25-10-1200-2.2 |
135 |
400 |
245 |
225 |
255 |
670 |
| 6 |
50-15-20-1200-2.2 |
135 |
400 |
245 |
225 |
255 |
670 |
| 7 |
50-20-15-1200-2.2 |
135 |
400 |
245 |
225 |
255 |
670 |
| 8 |
50-42-9-1200-3 |
143 |
420 |
265 |
225 |
255 |
750 |
| 9 |
50-17-25-1200-3 |
130 |
433 |
265 |
240 |
285 |
750 |
| 10 |
50-25-22-1200-4 |
135 |
400 |
245 |
225 |
255 |
735 |
| 11 |
50-40-15-1400-4 |
143 |
420 |
265 |
225 |
255 |
750 |
| 12 |
50-25-32-1600-5.5 |
180 |
480 |
295 |
270 |
320 |
820 |
| 13 |
50-40-30-1600-7.5 |
180 |
480 |
295 |
270 |
320 |
820 |
| 14 |
65-25-15-1400-3 |
143 |
435 |
270 |
225 |
255 |
750 |
| 15 |
65-37-13-1400-3 |
143 |
435 |
270 |
225 |
255 |
750 |
| 16 |
65-25-28-1400-4 |
180 |
515 |
317 |
270 |
320 |
800 |
| 17 |
80-40-7-1600-2.2 |
143 |
465 |
295 |
225 |
255 |
685 |
| 18 |
80-29-8-1600-2.2 |
143 |
465 |
295 |
225 |
255 |
685 |
| 19 |
80-43-13-1600-4 |
143 |
465 |
295 |
225 |
255 |
750 |
| 20 |
80-50-10-1600-3 |
180 |
570 |
325 |
280 |
320 |
790 |
| 21 |
80-40-15-1600-4 |
143 |
465 |
295 |
225 |
255 |
750 |
| 22 |
80-60-13-1600-4 |
143 |
465 |
295 |
225 |
255 |
750 |
| 23 |
80-35-25-1600-5.5 |
180 |
550 |
305 |
270 |
320 |
820 |
| 24 |
80-50-25-1600-7.5 |
180 |
550 |
305 |
270 |
320 |
820 |
| 25 |
80-50-30-1600-7.5 |
180 |
550 |
305 |
270 |
320 |
820 |
| 26 |
100-80-9-2000-4 |
180 |
600 |
386 |
280 |
320 |
790 |
| 27 |
100-110-10-2000-5.5 |
200 |
700 |
440 |
370 |
410 |
900 |
| 28 |
100-70-15-2000-5.5 |
200 |
690 |
430 |
370 |
410 |
900 |
| 29 |
100-100-15-2000-7.5 |
200 |
700 |
440 |
370 |
410 |
900 |
| 30 |
100-80-20-2000-7.5 |
180 |
585 |
370 |
270 |
320 |
900 |
| 31 |
100-50-35-2000-11 |
180 |
585 |
370 |
270 |
320 |
940 |
| 32 |
100-70-22-2000-7.5 |
180 |
585 |
370 |
270 |
320 |
900 |
| 33 |
100-100-22-2000-15 |
230 |
815 |
515 |
455 |
495 |
970 |
| 34 |
100-80-30-2000-15 |
230 |
815 |
515 |
455 |
495 |
970 |
| 35 |
150-150-10-2000-7.5 |
213 |
775 |
495 |
360 |
405 |
920 |
| 36 |
150-210-7-2500-7.5 |
242 |
830 |
540 |
365 |
410 |
950 |
| 37 |
150-250-6-2500-7.5 |
242 |
830 |
540 |
365 |
410 |
950 |
| 38 |
150-150-15-2500-11 |
220 |
770 |
495 |
345 |
395 |
990 |
|
自動耦合式安裝示意圖

1.通風節 2.預埋管 3.膨脹節 4.逆止閥 5.閘閥 6.彎管 7.導軌 8.出水管 9.支架 10.耦合底座 11.自動攪勻排污泵
12.浮球開關(水位開關)13.隔板 14.浮球固定架 15.小鏈 16.掛鉤 17.人梯 18.支撐架 19.電纜出線管 20.電機保護器
自動耦合式安裝平面圖
維護保養
- JYWQ型自動攪勻污水泵,并定期檢査電泵繞組與機殼之間的絕緣電阻是否正常。
- 每次使用特別是用于較稠較粘的介質后,應將電泵放入清水中運行數分鐘,防止泵內留沉積物,保證電泵的清潔。
- 屯泵拆卸、維修后,機殼組件必須經0.2MPa氣壓試驗檢驗,確保電機和油室密封可靠.
注意事項
- 運轉前應用兆歐表檢查電機定子繞組對地的絕緣電阻.最低不得少于50兆歐。
- 檢查電纜有無破損、折斷等現象。如有損傷須及時更換,以免漏電;電纜截面應與電流相匹配。
- 屯壓超過額定電壓的±10%時,不得啟動電泵。
- 為保證使用安全,必須將四芯電纜中的接地線可靠接地,以防發生觸電事故。
- JYWQ型自動攪勻排污泵潛入水中時,應垂直起吊,不允許橫放著地,更不能陷入污泥中。停止使用時應將電泵吊起清洗干凈,置于干燥處,并注意防凍。
- 禁止:將電纜作為安裝起吊繩使用。
- 檢査轉子運轉方向,從上向下看應為順時針方向旋轉。
- 室外的開關或接線端應有防雨、防潮措施,濕手或赤足時禁止觸及幵關,防止觸電。
- 移動電泵時,必須切斷電源,電泵在運行時人不得接觸水源,以防漏電發生人身事故。
- 嚴禁電機缺相運轉,如發現保險絲熔斷,應檢査原因后方可繼續使用,不得任意加粗保險絲。
- 泵運轉時,應有專人管理,如發現有不正常現象應立即停機檢査,排除故障。(指未配全自動保護柜的情況〉。
- 電泵在規定的工作介質條件下正常運行半年后,應檢査油室密封狀況,如油室中的油呈乳狀或有水沉淀,應及時更換10?20號機械油和機械密封。對于在惡劣工作條件下使用的電泵,更應經常檢修。
- 用戶應根據實際使用的工況選擇合適的流量揚程,以達到更佳使用效果,泵銘牌或說明書上所示參數為該泵更佳使用工況點,用戶可選在(0.7?1.2)倍更佳流量內使用,禁止超流量使用,否則流量過大, 揚程太低容易使電機過載。
故障排除
| 故障現象 |
原因分析 |
排除方法 |
| 不能啟動與運轉 |
- 電機太低
- 葉輪被雜物卡住
- 螺帽或平鍵損壞致使葉輪打滑
|
- 調節電壓或在電壓正常時工作
- 清除雜物
- 更換損壞零件
|
| 超負荷 |
- 轉子部件卡滯或過流部件被異物卡住
- 軸承損壞、軸變形
|
- 重新裝配、清除異物
- 更換軸承、校正軸
|
| 流量不足 |
- 吸入口或輸出管被阻
- 電機轉速低于額定轉速
- 葉輪打壞
- 揚程過高
- 旋向相反
- 介質太稠或供應量不暢通
|
- 清除雜物,保證暢通
- 提高轉速
- 更換葉輪
- 降低揚程
- 改換轉向
- 沖稀介質,增大供應量
|
| 噪聲與振動 |
- 葉輪與泵體有磨擦
- 軸承損壞或少油
- 螺帽松動
- 泵體中有雜物
- 吸入口有空氣滲入
|
- 檢査泵的裝配并進行調整
- 更換軸承成加油
- 更換螺帽
- 清除雜物
- 控制最低水位
|