本單位生產的玻璃鋼泵WSY型、FSY型玻璃鋼液下泵兩種型式的泵,1.WSY型泵為立式玻璃鋼液下旋渦泵。2.FSY型泵為立式玻璃鋼液下離心泵,該泵因伸入貯罐,貯槽的深度長短不同,設計液下深度800mm##3000mm之間任意選擇。只要液體高于泵體,即可不灌液而起動送液,平蓋板下設有泄漏孔,液體不會向貯罐外泄漏。 本玻璃鋼泵與介質接觸的零部件,系用聚乙烯醇縮丁醛改性酚醛玻璃纖維,經高溫模壓成型的酚醛玻璃鋼制件,聯接管、出液管采用半干法卷制工藝制成的酚醛玻璃鋼管,葉輪軸套的裝配均用酚醛膠泥和泵軸粘成一體,液下各部裝配均用酚醛膠泥粘結,伸入液下全無金屬與介質接觸,耐腐性能可靠。產品具有輕質、高強、不變形、耐溫、耐腐蝕等優良性能,在防腐方面可部分替代含鉬不銹鋼、鈦及鈦合金等貴重金屬。泵在傳動和旋轉方向:泵通過爪型彈性聯軸器由電動機直接驅動,從電動機端看泵為順時針方向旋轉。
| 型號 | 流量Q | 揚程H (m) | 轉速n (r/min) | 功率N (Kw) | 葉輪直徑D (mm) | 吸上高度 (Hs) | ||
| (m3/h) | (L/S) | |||||||
| 25WSY-22 | a型 | 2.88 | 0.8 | 22 | 2900 | 2.2 | 120 | 800至3000 |
| 4.05 | 1.12 | 18 | ||||||
| 6.48 | 1.8 | 15 | ||||||
| 25WSY-30 | 2.88 | 0.8 | 30 | 2900 | 3 | 120 | ||
| 6.48 | 1.8 | 20 | ||||||
| 9 | 2.52 | 15 | ||||||
| 40WSY-258 | 5.76 | 1.6 | 25 | 2900 | 4 | 142 | ||
| 8.1 | 2.24 | 20 | ||||||
| 13.32 | 3.7 | 15 | ||||||
| 40FSY-22 | 8.1 | 2.24 | 22 | 2900 | 3 | 140 | ||
| 15.84 | 4.4 | 18 | ||||||
| 20 | 5.5 | 15 | ||||||
| 40FSY-18 | 6.48 | 1.8 | 18 | 2900 | 2.2 | 132 | ||
| 15 | 4.17 | 15 | ||||||
| 21.6 | 6 | 12 | ||||||
| 40WSY-50 | b型 | 6.48 | 1.8 | 50 | 2900 | 7.5 | 144 | |
| 8.64 | 2.4 | 45 | ||||||
| 14.4 | 4 | 35 | ||||||
| 40FSY-35 | 10 | 2.8 | 34 | 2900 | 4 | 162 | ||
| 20 | 5.5 | 30 | ||||||
| 30 | 8.3 | 24 | ||||||
| 50FSY*35 | 30 | 8.3 | 35 | 2900 | 7.5 | 182 | ||
| 45 | 12.5 | 32 | ||||||
| 55 | 15.1 | 28 | ||||||
| 50FSY-35A | 25 | 7 | 26 | 2900 | 5.5 | 168 | ||
| 35 | 9.7 | 25 | ||||||
| 45 | 12.5 | 22 | ||||||
| 50FSY-20 | 18 | 5 | 20 | 2900 | 4 | 150 | ||
| 30 | 8.3 | 16 | ||||||
| 35 | 9.7 | 12 | ||||||
| 80FSY-35 | 56 | 15.5 | 35 | 2900 | 15 | 184 | ||
| 92 | 25.5 | 29 | ||||||
| 110 | 30.5 | 25 | ||||||
| 80FSY-35A | 45 | 12.5 | 26 | 2900 | 11 | 163 | ||
| 69 | 19.2 | 22 | ||||||
| 90 | 25 | 19 | ||||||

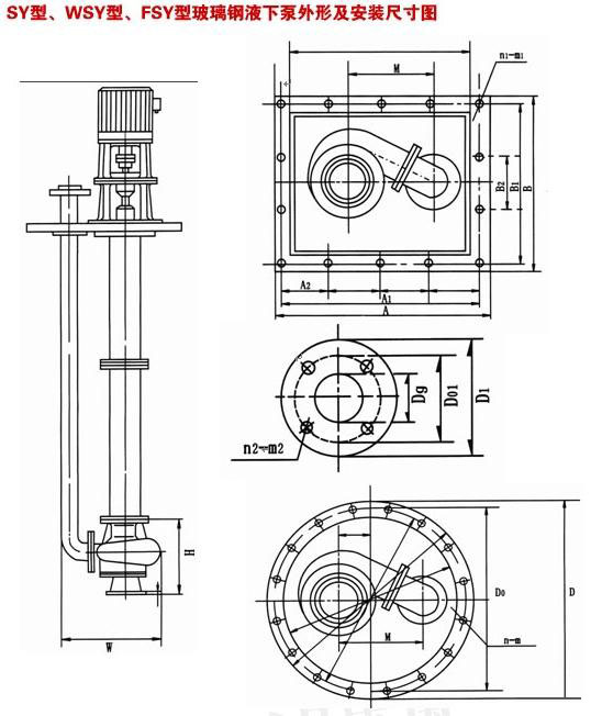
| 型號 | W | M | H | D | DO | n-m | Dg | D1 | DO1 | n2-m2 |
| SY40×32-20 | 340 | 205 | 200 | 450 | 400 | 8-F16 | 40 | 145 | 110 | 4-F18 |
| SY50×40-20 | 340 | 205 | 210 | 450 | 400 | 8-F16 | 40 | 145 | 110 | 4-F18 |
| SY65×50-20 | 370 | 205 | 220 | 450 | 400 | 8-F16 | 50 | 160 | 125 | 4-F18 |
| 25WSY-22 | 330 | 205 | 200 | 450 | 400 | 8-F16 | 25 | 110 | 85 | 4-F14 |
| 25WSY-30 | 330 | 205 | 200 | 450 | 400 | 8-F16 | 25 | 110 | 85 | 4-F14 |
| 40WSY-25 | 340 | 205 | 200 | 450 | 400 | 8-F16 | 40 | 145 | 110 | 4-F18 |
| 40FSY-22 | 340 | 205 | 200 | 450 | 400 | 8-F16 | 40 | 145 | 110 | 4-F18 |
| 40FSY-18 | 340 | 205 | 200 | 450 | 400 | 8-F16 | 40 | 145 | 110 | 4-F18 |
| 40WSY-50 | 410 | 330 | 230 | 600 | 550 | 8-F18 | 32 | 140 | 100 | 4-F18 |
| 50FSY-35 | 370 | 205 | 220 | 450 | 400 | 8-F16 | 50 | 160 | 125 | 4-F18 |
| 40FSY-35 | 340 | 205 | 220 | 450 | 400 | 8-F16 | 50 | 160 | 125 | 4-F18 |
| 50FSY-20 | 340 | 205 | 210 | 450 | 400 | 8-F16 | 40 | 145 | 110 | 4-F18 |
| 80FSY-35 | 500 | 330 | 250 | 600 | 550 | 8-F18 | 65 | 180 | 145 | 4-F18 |
| 80FSY-35 | 500 | 330 | 250 | 600 | 550 | 8-F18 | 80 | 190 | 160 | 4-F18 |